Cocina Santos en paralelo con office
Proyecto de Cocina Santos
Cocinas Santos en color blanco Innsbruck y roble rústico con material estratificado y laminado madera, modelo Fine, plataforma A y D.
Encimera de Ascale en color Croma white con acabado mate.
Esta cocina con combinación en dos tonos, aporta sofisticación, elegancia y estilo a la estancia de día de la vivienda.
El mobiliario de líneas sencillas, en color blanco y madera y con una distribución en paralelo, crean un espacio funcional y práctico.
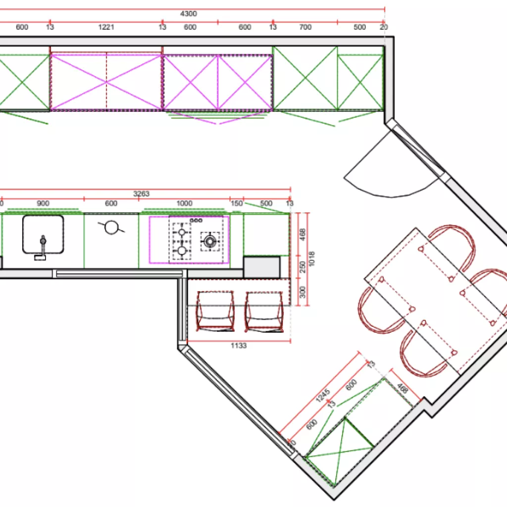
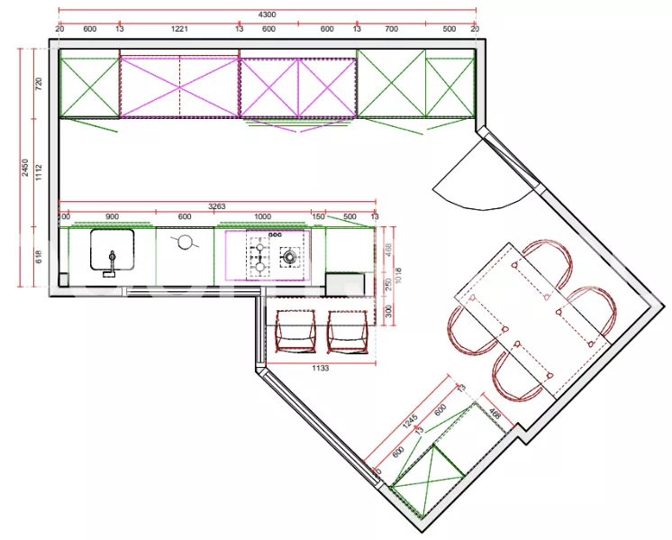
El diseño de esta cocina en paralelo, se compone por diferentes módulos, muebles bajos, desayunador y columnas, incorporando diferentes soluciones de almacenamiento y zonas de trabajo, consiguiendo un espacio práctico y funcional para los usuarios.
Uno de los frentes, acoge la zona de aguas y la zona de cocción y el frente en paralelo, un desayunador y diferentes columnas donde se integran los grandes electrodomésticos.
Un extremo de uno de los frentes, compone una pequeña península con barra para dos comensales.
Por otro lado, una mesa office, iluminada con una lámpara de Foscarini, para cuatro comensales.
Mobiliario:
Modelo: Serie Fine / plataforma A y D
Material: Estratificado y laminado madera
Color: Blanco Innsbruck y roble rústico
Encimera:
Material: Ascale
Color: Croma White< br /> Acabado: Mate
Electrodomésticos: Neff
Grifo y Fregadero: Veravent
Dimensiones: 12 m2
Solicite un presupuesto de cocinas Santos sin compromiso
Estamos disponibles para ayudarle en cada paso para el proyecto de la cocina de sus sueños.
Visite nuestros Showroom en Madrid
Lunes - Viernes: De 10:00 a 20:00
Sábados: De 10:00 a 14:00



