¿Qué es el interiorismo?
El interiorismo es una disciplina artística enfocada en la planificación y optimización de los espacios interiores. Estrechamente relacionado con la arquitectura, comparte objetivos similares, aunque su enfoque principal es diseñar ambientes interiores que sean funcionales, ergonómicos y que contribuyan a mejorar la calidad de vida de quienes los utilizan.




Proyecto Integral de Interiorismo



¿Qué hace un interiorista?
Un interiorista busca soluciones para optimizar los espacios interiores, ocupándose de la distribución, el diseño, la decoración y la iluminación. Su objetivo es crear ambientes con carácter y personalidad que se adapten a las necesidades específicas de cada cliente.
Entre sus responsabilidades se encuentran la realización del proyecto de interiorismo, la creación de planos, la selección de materiales y acabados, siempre ajustándose al presupuesto y requerimientos del cliente.
El propósito principal de un interiorista es diseñar espacios funcionales, cómodos y acogedores, maximizando el aprovechamiento de cada metro cuadrado.
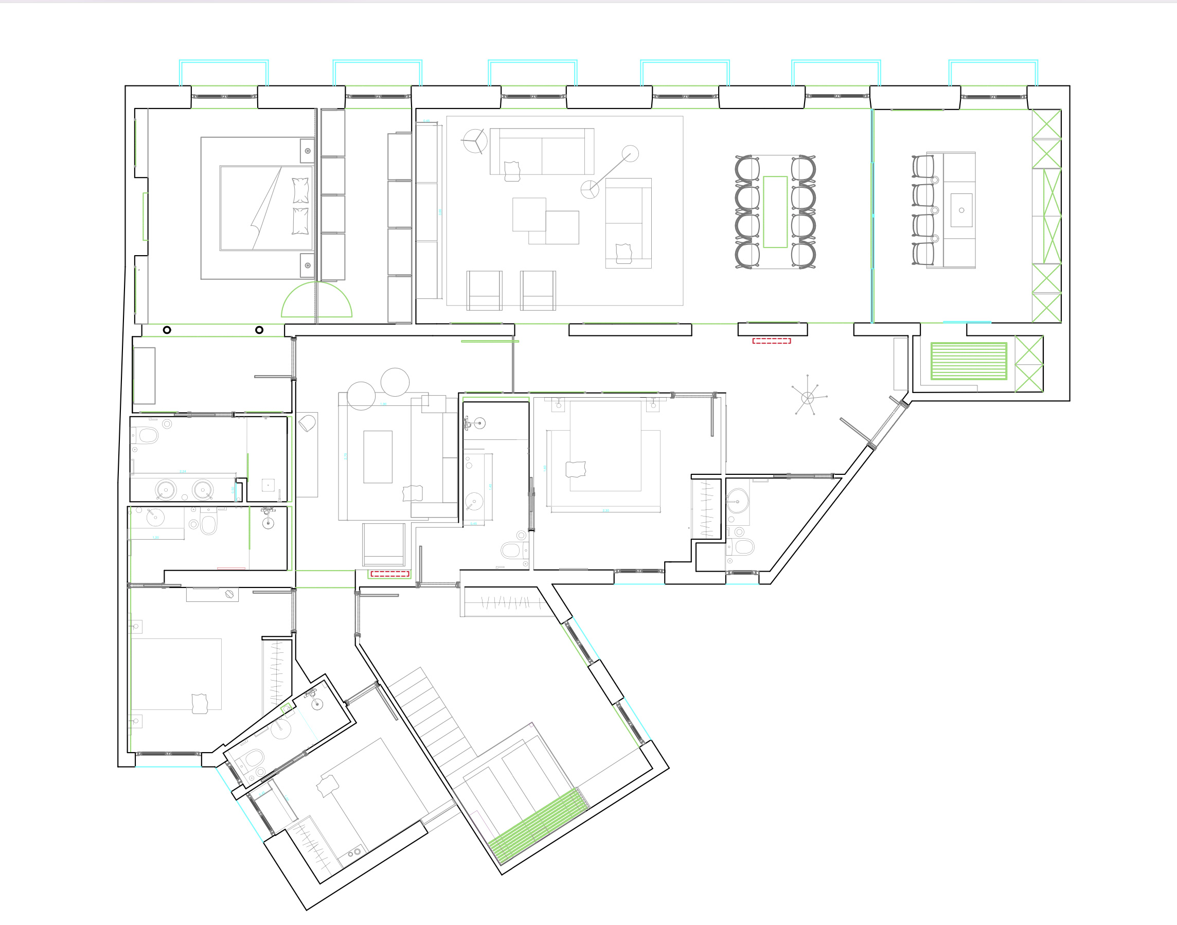
Para lograrlo, el interiorista elabora planos en 2D que reflejan las nuevas distribuciones, planos técnicos de instalaciones e iluminación, y visualizaciones en 3D que muestran cómo será la decoración final del espacio.


La iluminación forma parte esencial en un proyecto de interiorismo


En DOCRYS & DC, contamos con más de 30 años de experiencia en el mundo del interiorismo, dedicándonos a examinar cada espacio al detalle para lograr los mejores resultados.
Nuestro equipo de interioristas y diseñadores altamente cualificados visitará tu espacio y elaborará una propuesta completamente personalizada.
Ofrecemos una nueva distribución reflejada en un plano de planta, alzados en 2D y planos técnicos de instalaciones, asegurando una planificación integral del proyecto.
Además, tienes la opción de contratar imágenes en 3D por estancias, lo que te permitirá visualizar el resultado final antes de que el proyecto esté concluido.

Distribución con un plano planta, alzados en 2D, planos de instalaciones

Infografia de proyecto de interiorismo en 3D para cocina abierta final


Infografia de proyecto de interiorismo en 3D para baño y resultado final


Infografia de proyecto de interiorismo en 3D para salón y resultado final

Nuestro principal objetivo es ilusionar, sorprender y emocionar a nuestros clientes, creando el diseño perfecto para su hogar.
Con más de 5.000 proyectos de diseño realizados a lo largo de los años y nuestra amplia experiencia, podemos garantizar un proyecto de interiorismo ideal, adaptado a tus necesidades y estilo.
Preguntas frecuentes sobre proyectos de interiorismo
¿Qué incluye un proyecto de interiorismo completo con Docrys & DC?
Un proyecto de interiorismo completo incluye todo el proceso desde el primer contacto: medición y análisis del espacio, diseño 2D según lo solicitado, selección de materiales y mobiliario. Existe además la opción de añadir visualizaciones en 3D.
¿Puedo adaptar el proyecto a mi estilo, necesidades y presupuesto?
Sí. El equipo de interioristas trabaja de forma totalmente personalizada, escuchando tus gustos, necesidades de espacio, estilo de vida y presupuesto para ofrecer soluciones a medida.
¿Trabajáis solo con cocinas o también con otras estancias?
Trabajamos en toda la vivienda. Podemos realizar proyectos integrales desde la obra o intervenir en una única estancia, transformando tu casa en un hogar completo y coherente.
¿Realizáis la obra o solo el diseño y la planificación?
En proyectos integrales, Docrys & DC puede coordinar y supervisar la ejecución de la obra junto a profesionales técnicos especializados.
¿Puedo empezar con un proyecto pequeño y luego ampliarlo?
Sí. Nuestro enfoque es flexible: puedes comenzar remodelando una sola estancia y ampliar el proyecto más adelante cuando lo desees.
¿Cómo es el proceso de trabajo desde el primer contacto?
Primero concertamos una cita (presencial, online o visita a domicilio). Tras preparar y aceptar el presupuesto, realizamos la medición y análisis del espacio, presentamos la propuesta 2D, ajustamos el proyecto y realizamos seguimiento postventa.
¿Puedo ver ejemplos reales de proyectos antes de decidirme?
Sí. Puedes acceder a nuestro portfolio de proyectos realizados y visitar nuestros showrooms en Madrid para conocer materiales, acabados y ejemplos reales.
¿Trabajáis con marcas reconocidas o solo con mobiliario genérico?
Trabajamos con marcas exclusivas y reconocidas del sector, lo que garantiza calidad, durabilidad y diseño en cada proyecto.
¿Qué ventajas tiene contratar un estudio de interiorismo en lugar de hacerlo por separado?
Contratar un estudio de interiorismo ofrece ahorro de tiempo, coordinación integral, coherencia en diseño y ejecución, seguimiento completo, reducción de errores y un resultado profesional.
¿Tenéis equipo de obra o reformistas?
Docrys & DC no cuenta con un equipo de obra propio, pero recomendamos reformistas externos de total confianza con los que trabajamos habitualmente y mantenemos una comunicación constante durante todo el proceso.