Cocina Santos nogal semiabierta al salón con península
Proyecto de Cocina Santos
Cocinas Santos en color nogal tierra con material estratificado, modelo fine, plataforma E.
Encimera de Neolith en color Calacatta con acabado pulido.
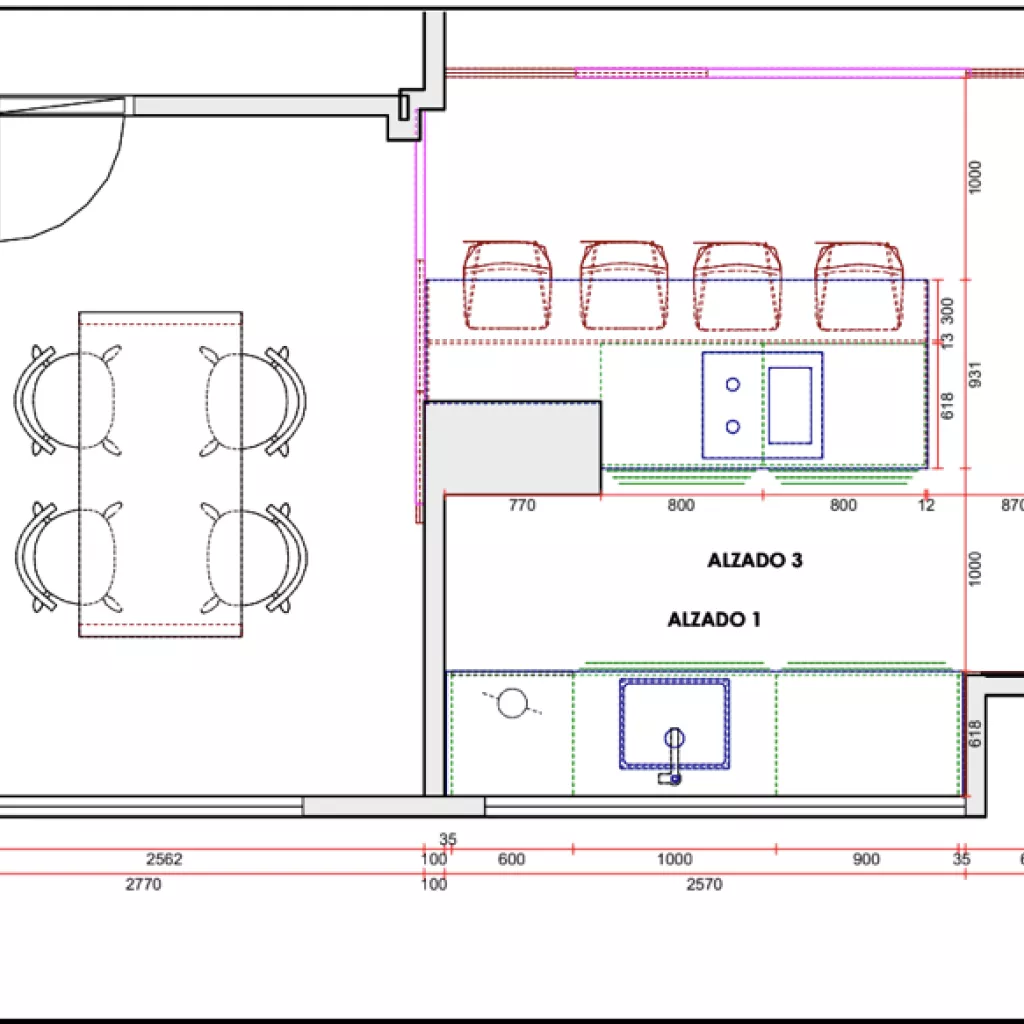
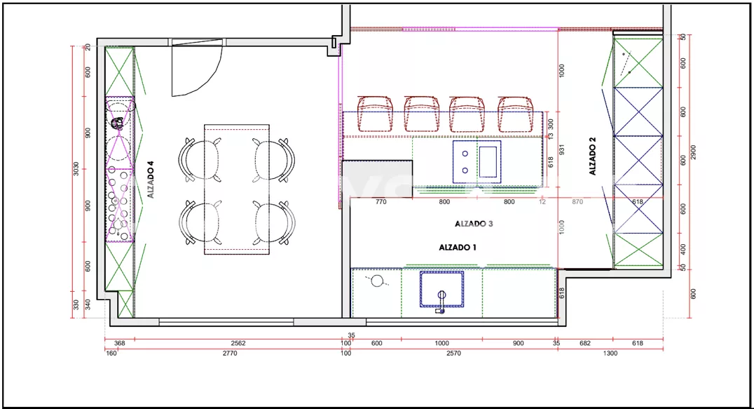
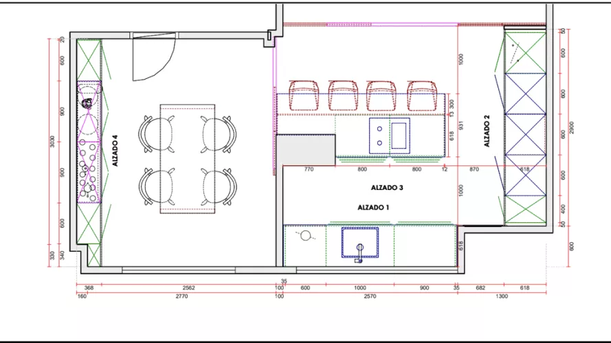
Esta cocina se ubica en una estancia de 20 m2 y se conecta con salón a través de una puerta corredera de cristal y aluminio negro, dejando entrar toda la luz de la estancia y creando sensación de mayor amplitud.
El diseño de esta cocina en color nogal tierra, se integra con la decoración de la vivienda, fusionándose a la perfección en el ambiente.
La distribución de esta cocina cuenta con dos espacios conectados, uno se compone por una península con barra y un frente en forma de L, por otro lado, la zona office, donde se ubica una mesa para comer y un mueble desayunador con gran capacidad de almacenaje.
El color del mobiliario en nogal tierra, genera un espacio elegante, sofistico y de diseño.
Mobiliario:
Modelo: Serie Fine / plataforma E
Material: Estratificado
Color: Nogal tierra
Encimera:
Material: Neolith
Color: Calacatta
Acabado: Pulido
Electrodomésticos: Neff y Miele
Fregadero: Veravent
Taburetes: La Palma
Dimensiones: 20 m2
Cod. proyecto: 12 - 4 – 7
Solicite un presupuesto de cocinas Santos sin compromiso
Estamos disponibles para ayudarle en cada paso para el proyecto de la cocina de sus sueños.
Visite nuestros Showroom en Madrid
Lunes - Viernes: De 10:00 a 20:00
Sábados: De 10:00 a 14:00














