Cocina Santos negra con isla abierta al salón
Proyecto de Cocina Santos
Cocinas Santos en color negro seda y roble rústico con material estratificado y laminado madera, modelo Fine, plataforma E y A.
Encimera de Dekton en color Enzo con acabado natural.
Esta cocina abierta al salón, forma parte del corazón de la vivienda, luminosa, moderna y elegante, integrándose a la perfección con la decoración y estilo del resto de la vivienda.
El mobiliario de líneas rectas y sencillas, en color negro, se integran a la perfección en el espacio y la distribución junto con la isla central, facilita el día a día de sus usuarios, siendo muy funcional.
El diseño de esta cocina, incorpora múltiples soluciones de almacenamiento, consiguiendo que todo esté en su sitio y transmita orden.
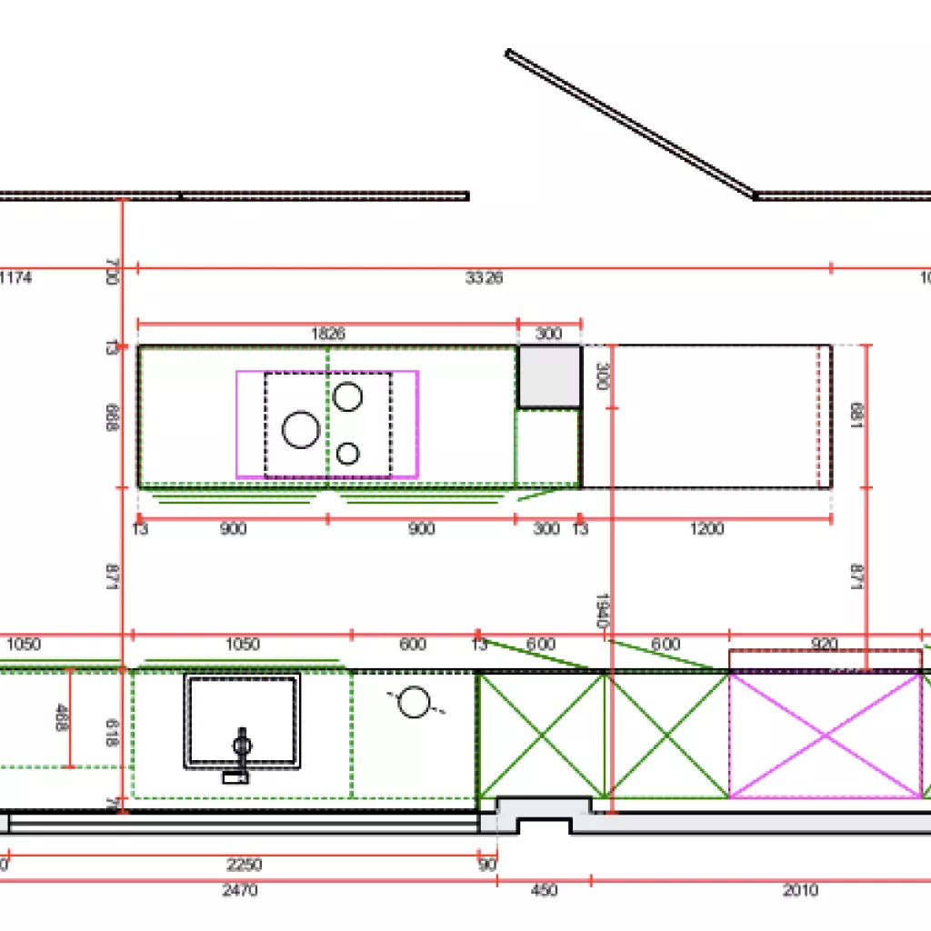
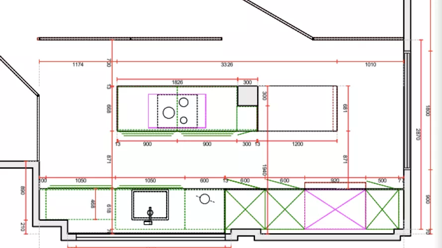
Un frente de la cocina acoge la zona de aguas, además de varias columnas donde se integran los grandes electrodomésticos.
Por otro lado, la gran isla central que acoge la zona de cocción, además de una extensa zona de trabajo.
Esta isla cuenta con un anexo en forma de mesado, creando una zona de office perfecto para comidas en familia.
Esta cocina también cuenta con unas puertas correderas de cristal y madera, teniendo la opción de mantener la cocina abierta o cerrada según la ocasión.
Mobiliario:
Modelo: Serie Fine / plataforma E y A
Material: Estratificado y laminado madera
Color: Negro seda y roble rústico
Encimera:
Material: Dekton
Color: Enzo
Acabado: Natural
Electrodomésticos: Neff
Grifo y Fregadero: Veravent
Dimensiones: 14 m2
Solicite un presupuesto de cocinas Santos sin compromiso
Estamos disponibles para ayudarle en cada paso para el proyecto de la cocina de sus sueños.
Visite nuestros Showroom en Madrid
Lunes - Viernes: De 10:00 a 20:00
Sábados: De 10:00 a 14:00






