Cocina Santos negra con isla
Proyecto de Cocina Santos
Cocinas Santos en color negro seda y roble café con material estratificado y laminado madera, modelo Fine, plataforma E.
Encimera de Dekton en color Laurent con acabado mate liso.
Esta cocina abierta abierta al salón, forma parte del corazón de la vivienda, elegante, moderna y luminosa.
El mobiliario de líneas finas y sencillas, en color negro y roble café, se integran en el espacio, con una distribución funcional junto con la isla central, creando un espacio funcional y acogedor.
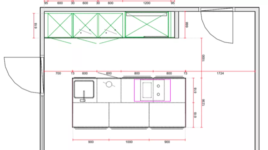
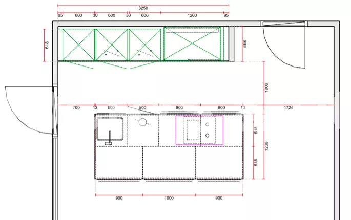
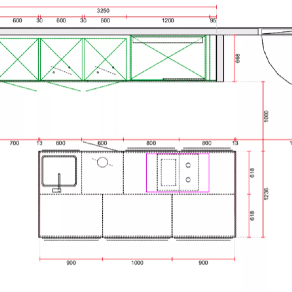
El diseño de esta cocina, cuenta con un frente compuesto por varias columnas y un desayunador y una isla central, modelo barco, como muebles bajos.
Esta cocina incorpora múltiples soluciones de almacenaje y zonas de trabajo, consiguiendo un espacio funcional y práctico.
La isla acoge la zona de aguas y la zona de cocción, mientras que en las columnas se integran los grandes electrodomésticos.
Mobiliario:
Modelo: Serie Fine / plataforma E
Material: Estratificado y laminado madera
Color: Negro seda y roble café
Vitrina Santos: Alum Noir, cristal ahumado y nogal americano
Encimera:
Material: Dekton
Color: Laurent
Acabado: Mate liso
Electrodomésticos: Neff
Grifo y Fregadero: Veravent
Dimensiones: 9.5 m2
Solicite un presupuesto de cocinas Santos sin compromiso
Estamos disponibles para ayudarle en cada paso para el proyecto de la cocina de sus sueños.
Visite nuestros Showroom en Madrid
Lunes - Viernes: De 10:00 a 20:00
Sábados: De 10:00 a 14:00



