Cocina Santos madera con península
Proyecto de Cocina Santos
Cocinas Santos en color nogal tierra con material estratificado, modelo Fine, plataforma E y A.
Encimera de Neolith en color Calacatta con acabado pulido.
Esta cocina abierta semi abierta al salón, es la zona principal de la vivienda, un espacio para compartir y disfrutar en familia.
El mobiliario con un diseño moderno de líneas sencillas, en color nogal tierra, se integra con la decoración del resto de la vivienda y su distribución junto con la península, crea un espacio elegante y funcional.
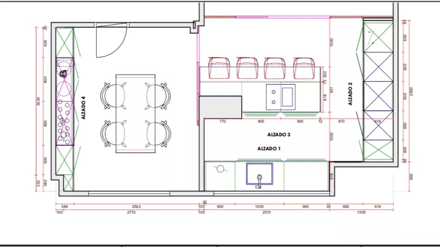
El diseño de esta cocina cuenta con muebles bajos, columnas y un desayunador, incorporando diferentes soluciones de almacenaje y zonas de trabajo, obteniendo un espacio funcional y cómodo.
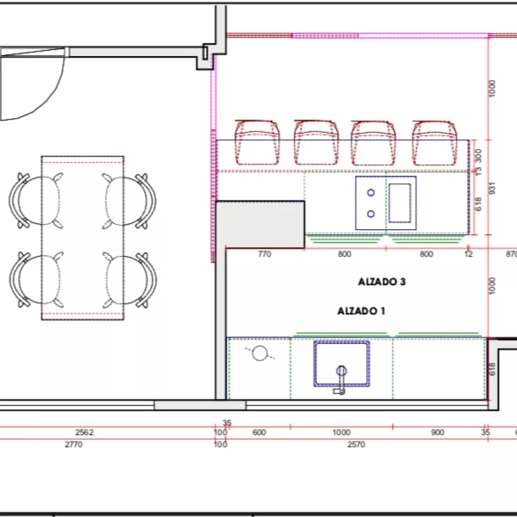
Uno de los frentes de la cocina, en forma de L, acoge la zona de aguas, además de varias columnas donde se integran los grandes electrodomésticos.
Por otro lado, una península, donde se ubica la zona de cocción y una barra para tres comensales.
Por último, una zona office, con una mesa circular y un mueble desayunador.
Esta cocina cuenta con unas puertas correderas de cristal y aluminio negro, teniendo la opción de mantener la cocina abierta o cerrada según la ocasión.
Mobiliario:
Modelo: Serie Fine / plataforma E y A
Material: Estratificado
Color: Nogal tierra
Encimera:
Material: Neolith
Color: Calacatta
Acabado: Pulido
Electrodomésticos: Neff, Miele y Novy
Grifo y Fregadero: Veravent
Dimensiones: 15 m2
Cod. proyecto: 12 - 5 - 8
Solicite un presupuesto de cocinas Santos sin compromiso
Estamos disponibles para ayudarle en cada paso para el proyecto de la cocina de sus sueños.
Visite nuestros Showroom en Madrid
Lunes - Viernes: De 10:00 a 20:00
Sábados: De 10:00 a 14:00




