Cocina Santos blanca y madera con isla
Proyecto de Cocina Santos
Cocinas Santos en color blanco sapporo y roble natural con material estratificado, modelo Fine, plataforma E.
Encimera de Neolith en color calacatta con acabado silk.
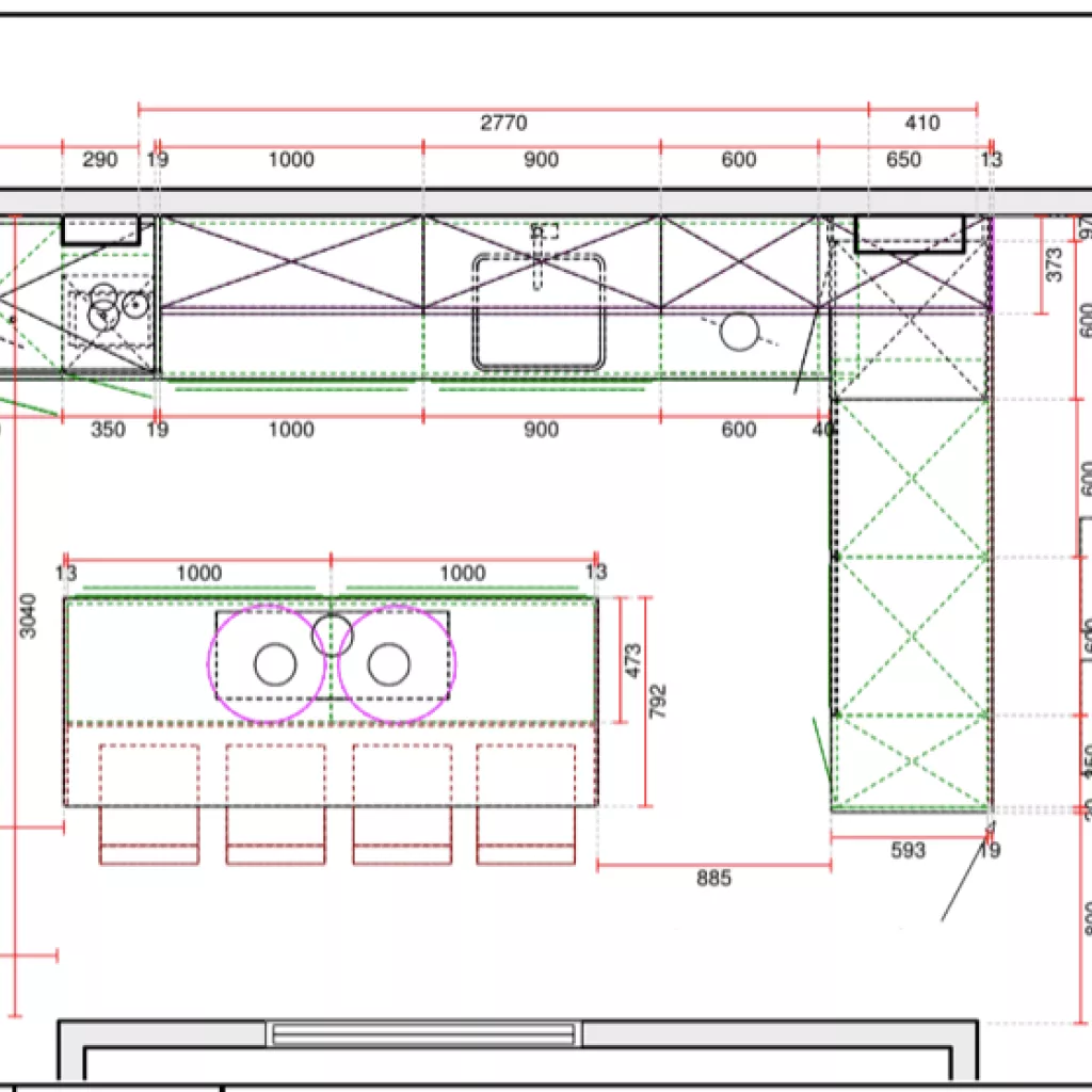
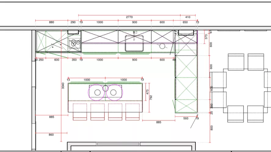
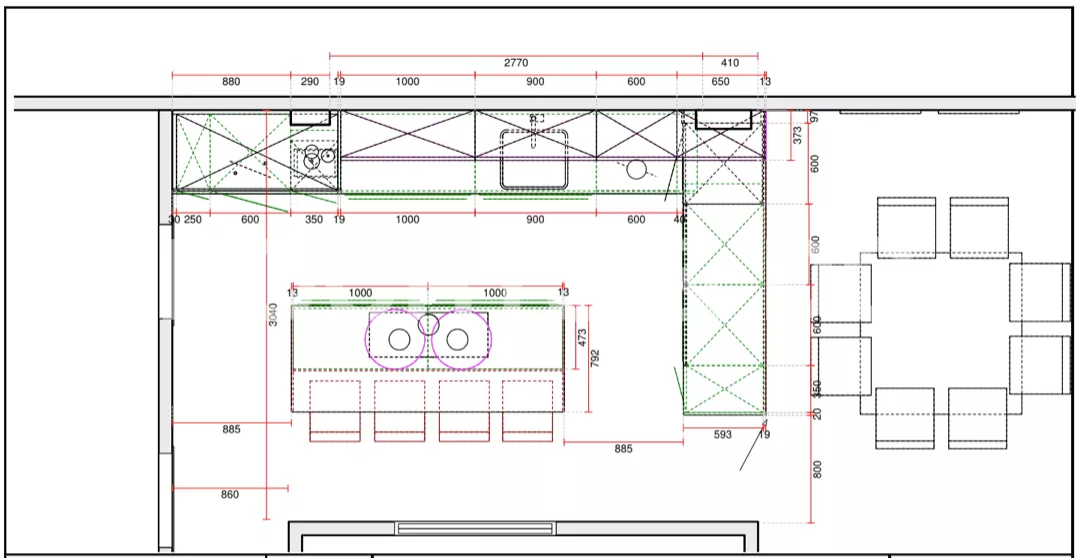
Esta cocina se sitúa en una estancia de 13 m2 y está conectada con la zona office.
En este proyecto de cocina, se buscó un diseño sobrio, elegante y atemporal, un espacio funcional, donde compartir y disfrutar en compañía.
El mobiliario en color blanco sapporo y roble natural, se integra a la perfección en el espacio y su distribución junto con la isla, crean un espacio cómodo y práctico para las tareas diarias.
El diseño de esta cocina se compone de muebles bajos, muebles altos y columnas, ofreciendo múltiples soluciones de almacenaje y zonas de trabajo.
El frente en forma de L, acoge la zona de aguas y los grandes electrodomésticos.
Por otro lado, en la isla se ubica la zona de cocción, además de una zona de trabajo y una barra para cuatros comensales.
Proyecto en colaboración con el estudio de arquitectura Tinerfe:
Mobiliario:
Modelo: Serie Fine / plataforma E
Material: Estratificado
Color: Blanco Sapporo y roble natural
Encimera:
Material: Neolith
Color: Calacatta
Acabado: Silk
Electrodomésticos: Bosch, Neff y Pando
Grifo y Fregadero: Veravent
Dimensiones: 13 m2
Cod. proyecto: 17 - 3 - 9
Solicite un presupuesto de cocinas Santos sin compromiso
Estamos disponibles para ayudarle en cada paso para el proyecto de la cocina de sus sueños.
Visite nuestros Showroom en Madrid
Lunes - Viernes: De 10:00 a 20:00
Sábados: De 10:00 a 14:00





