Cocina Santos blanca con distribución en L
Proyecto de Cocina Santos
Cocinas Santos en color Blanco sapporo seda con material estratificado seda, modelo Fine, plataforma D.
Encimera de Neolith en color Mont blanc con acabado silk.
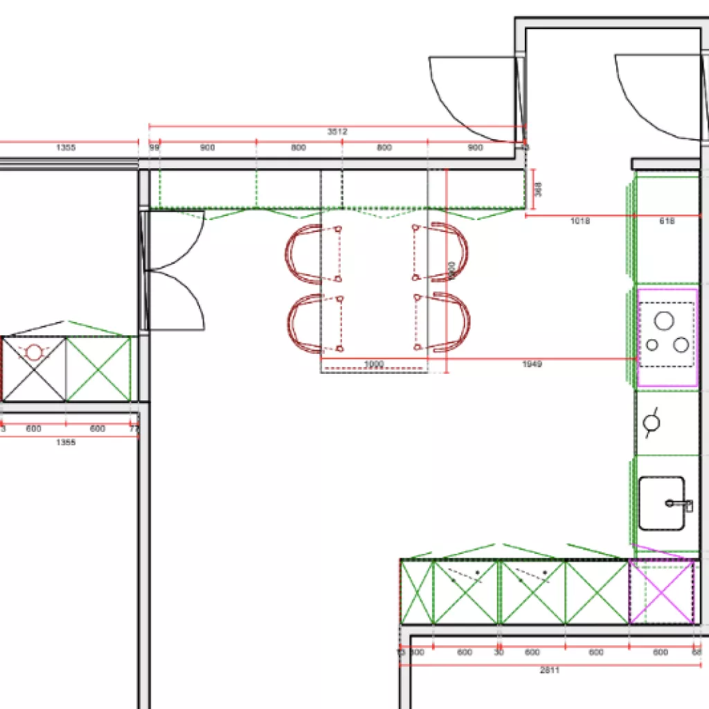
Esta cocina forma parte de una zona de día amplia, luminosa y acogedora.
El mobiliario de líneas puras y sencillas, en color blanco, se integran a la perfección en el espacio y la distribución en forma de L, facilita el día a día de sus usuarios.
El diseño de esta cocina, incorpora múltiples soluciones de almacenaje, consiguiendo que así todo se encuentre siempre recogido.
Un extremo de la cocina, acoge la zona de cocción y la zona de aguas, además de un gran espacio destinado a zona de trabajo.
El otro frente, lo componen varias columnas, donde se integran los grandes electrodomésticos, además de una gran zona de almacenaje.
Además, cuenta con un office para cuatro comensales, bajo la imponente lámpara de Foscarini que consigue dar ese toque de estilo y sofisticación a la estancia.
Mobiliario:
Modelo: Serie Fine / plataforma D
Material: Estratificado seda
Color: Blanco sapporo seda
Encimera:
Material: Silestone
Color: Desert silver
Acabado: Suede
Electrodomésticos: Neff
Grifo y Fregadero: Veravent
Dimensiones: 15 m2
Solicite un presupuesto de cocinas Santos sin compromiso
Estamos disponibles para ayudarle en cada paso para el proyecto de la cocina de sus sueños.
Visite nuestros Showroom en Madrid
Lunes - Viernes: De 10:00 a 20:00
Sábados: De 10:00 a 14:00





