Cocina blanca y madera con isla de Santos
Proyecto de Cocina Santos
Cocinas Santos en color blanco sapporo y olmo claro con material estratificado y laminado, modelo Fine, plataforma E.
Encimera de Neolith en color montblanc con acabado silk.
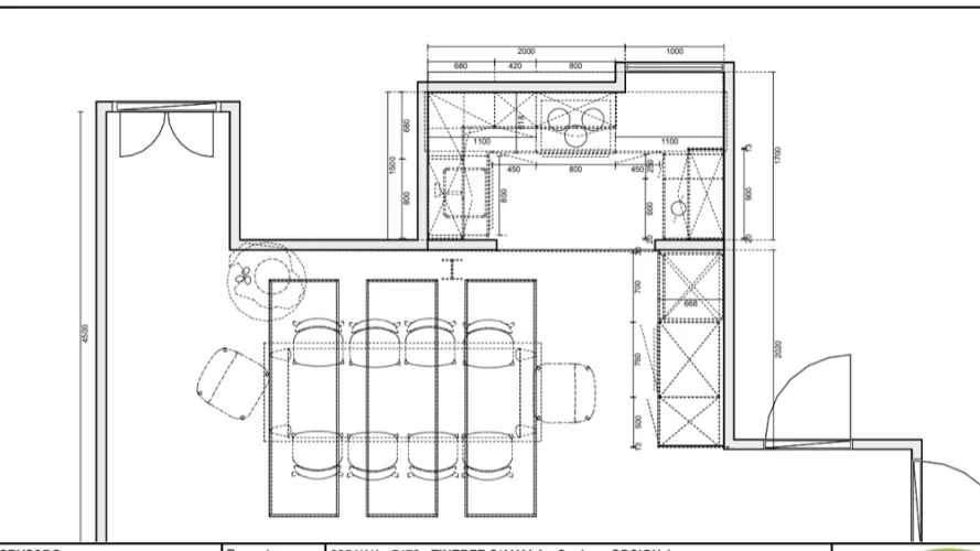
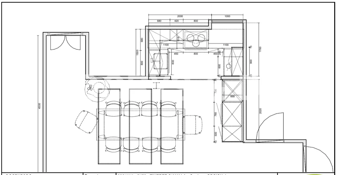
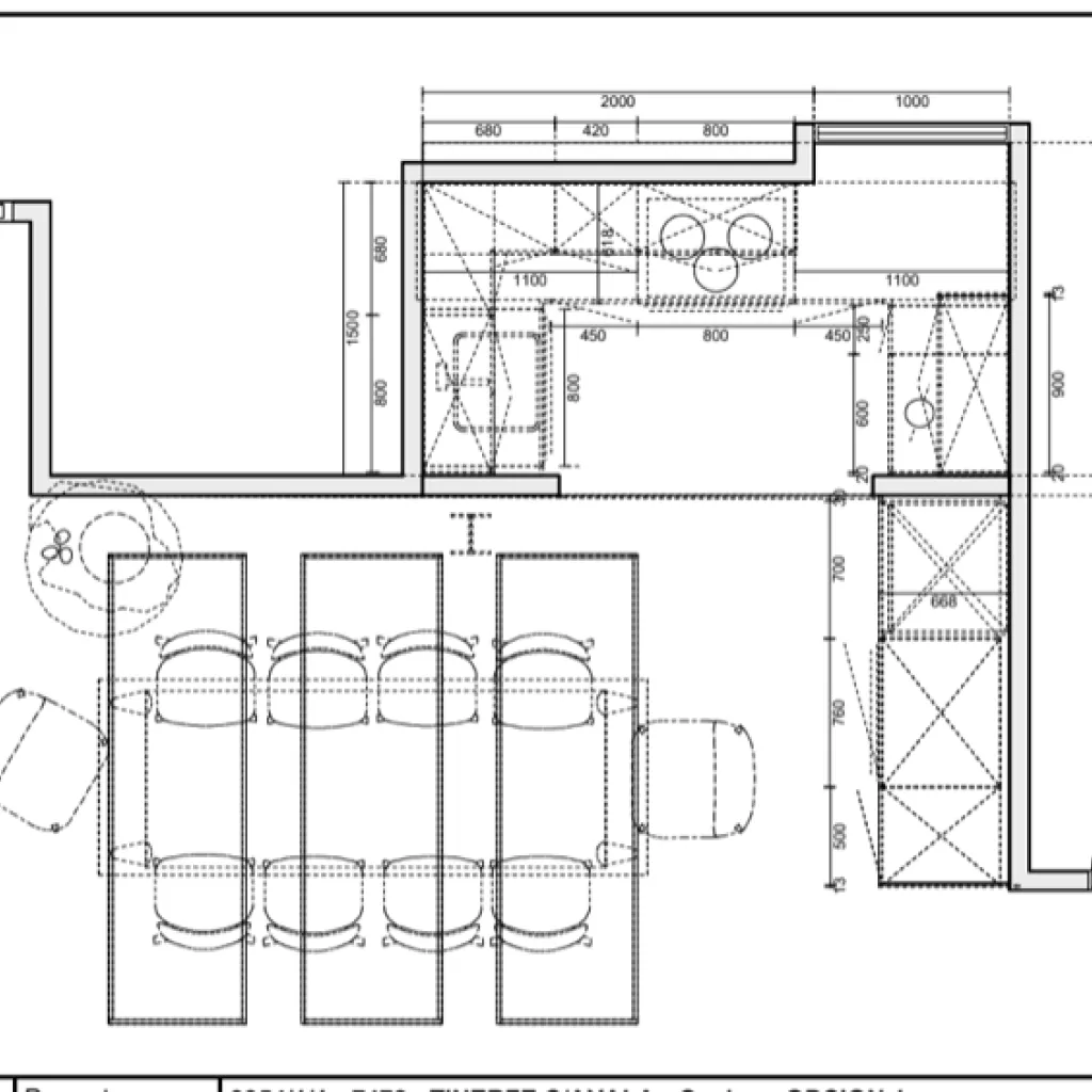
Esta cocina se sitúa en una estancia de 11 m2 y está conectada con la zona de comedor y salón de la vivienda.
En el diseño de esta cocina, se buscó un diseño elegante, sofisticado y vanguardista, consiguiendo un espacio funcional, práctico y de diseño al mismo tiempo.
El mobiliario en color blanco sapporo y olmo claro, se integra con facilidad en el espacio y su distribución, crean un espacio cómodo y ergonómico para las tareas diarias.
El diseño de esta cocina en forma de U, se compone de muebles bajos y muebles altos, ofreciendo múltiples soluciones de almacenaje y zonas de trabajo.
Por otro lado, un frente en la zona de comedor compuesto por columnas y gavetas en olmo claro con tirador en negro, una perfecta combinación para la zona de comedor y salón.
Proyecto en colaboración con el estudio de arquitectura Tinerfe:
Mobiliario:
Modelo: Serie Fine / plataforma E
Material: Estratificado y laminado
Color: Blanco Sapporo y olmo claro
Encimera:
Material: Neolith
Color: Montblanc
Acabado: Silk
Electrodomésticos: Neff, Liebherr y Pando
Mesa: Lago
Dimensiones: 11 m2
Cod. proyecto: 10 - 3 – 11
Solicite un presupuesto de cocinas Santos sin compromiso
Estamos disponibles para ayudarle en cada paso para el proyecto de la cocina de sus sueños.
Visite nuestros Showroom en Madrid
Lunes - Viernes: De 10:00 a 20:00
Sábados: De 10:00 a 14:00







