La distribución de una cocina es una de las partes más importantes a la hora de realizar un proyecto.
Debemos estudiar con mucho mimo el espacio con el que contamos y para qué tipo de familia irá destinada, necesidades y funcionalidad.
Durante el estudio de la distribución, debemos tener muy en cuenta la ubicación de los electrodomésticos, zona de aguas, zona de cocción, espacio para trabajar y capacidad de almacenamiento.
Lo más importante a la hora de pensar una posible distribución, es pensar en la ergonomía, comodidad y funcionalidad del espacio y que cada parte de la cocina tenga una continuidad.
Existe una forma de distribución que fue desarrollada por una escuela de arquitectura en EEUU, llamada el triángulo de trabajo, consiste en conectar las zonas principales de trabajo de la cocina con distancias que sean cómodas de recorrer y acceder.
La forma del triángulo tiene un porqué y se debe a que conecta las 3 zonas importantes de la cocina: almacenamiento, trabajo y cocción.

COCINA CON UN SOLO FRENTE
Si el espacio de tu cocina no es demasiado amplio puedes optar por una distribución con un solo frente de muebles.
En este caso, sustituimos uno de los tabiques por un cerramiento de cristal que comunicaba con el salón, ganando así mucha luminosidad y sensación de amplitud.


Cocina con un frente

Planos cocinas con un frente

COCINA CON DOS FRENTES
Cuando el espacio de nuestra cocina es alargado y estrecho, la mejor opción de distribución para nuestra cocina son dos frentes en paralelo, creando así, un espacio cómodo de movimientos y trabajo y con gran capacidad de almacenaje.
En este caso, agregamos una prolongación en unos de los frentes, creando una cómoda barra para desayunos y comidas rápidas.
Cocina con dos frentes


Planos cocinas con dos frentes
COCINA CON ISLA
Si tu cocina cuenta con más metros cuadrados de lo normal, debes aprovechar e incluir una isla en tu cocina… ¡No te arrepentirás jamás!
En este caso la distribución de los frentes es en forma de L, pero la gran protagonista de la estancia es la isla central, que además, tiene una prolongación de donde sale una mesa de office para cuatro comensales.

Planos cocinas con isla
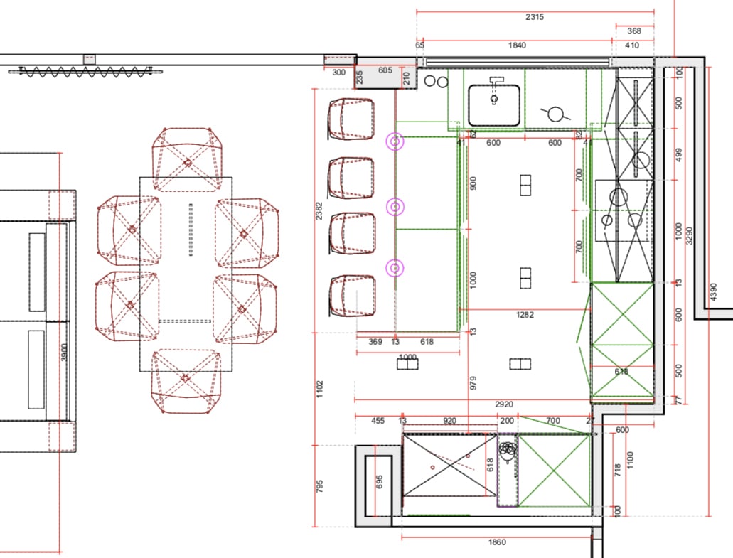
COCINA EN L
Las cocinas en L, son una buena elección si cuentas con un espacio alargado y ancho.
En el caso del diseño de esta cocina, la organización de los módulos y las líneas de los muebles son tan finas, que aportan al espacio ligereza y elegancia. Esta cocina se compone de muebles bajos en forma de L con la prolongación de una mesa de office para tres comensales. Además, cuenta con dos columnas donde se encuentran los grandes electrodomésticos.


Cocinas en L

Planos cocinas en L
COCINA EN U
Las cocinas con distribución en U son de lo más prácticas y cumplen a rajatabla el teorema del triángulo de trabajo.
El diseño de esta cocina con distribución en U cuenta con muebles altos, muebles bajos y columnas, además de una prolongación de la encimera a modo de barra para tres clientes.





Planos cocinas en U
Y tú, ¿con qué distribución de cocina te quedas? Si estás pensando en cambiar tu cocina y quieres sacar el mayor rendimiento a tu espacio y obtener como resultado una cocina funcional cómoda, te esperamos en nuestros estudios para que un profesional pueda hacerte un diseño de cocina ajustado a tus necesidades y gustos. ¡Te esperamos!